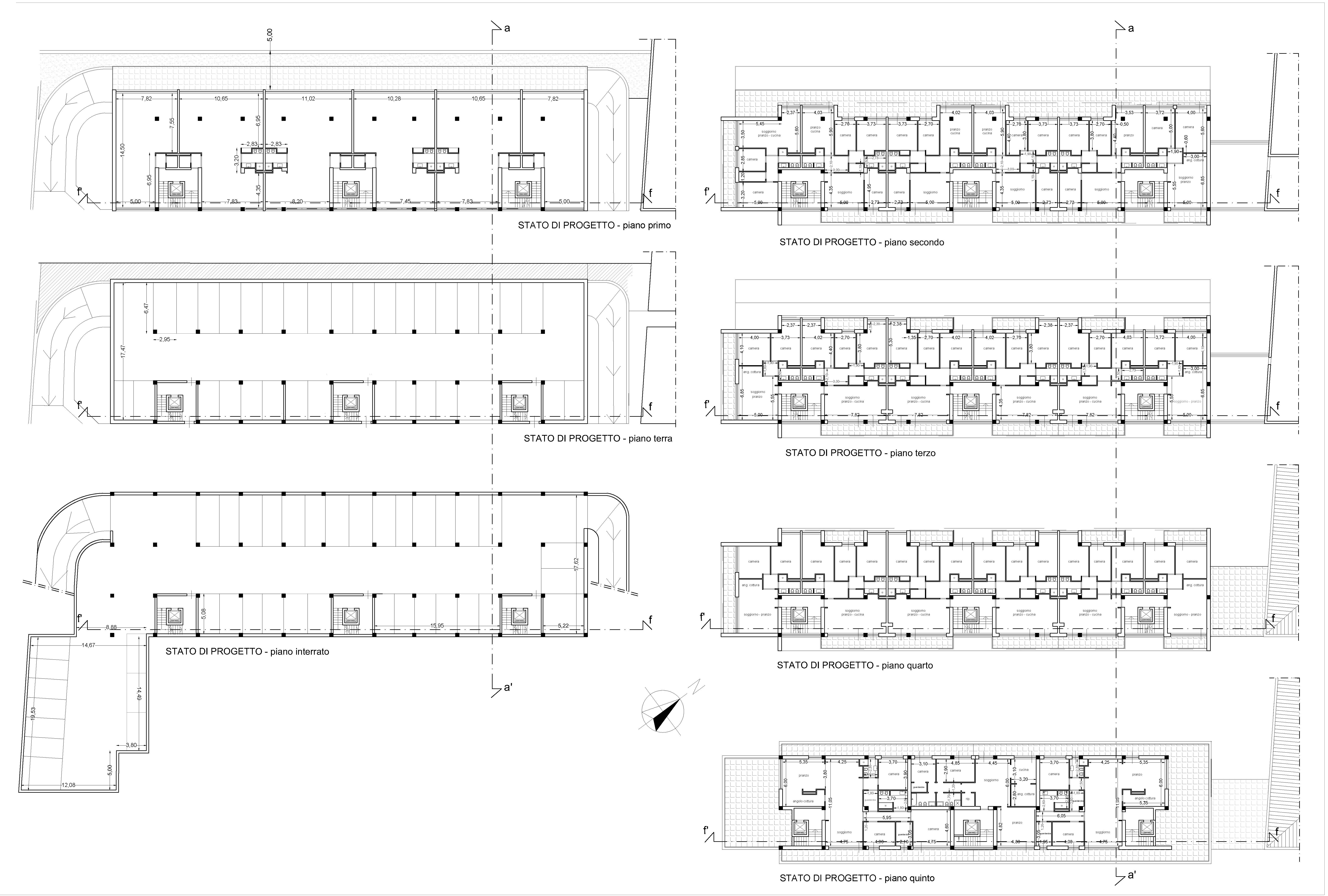
Il progetto prevede il recupero funzionale di un complesso industriale risalente ai tardi anni ’30, con una rigenerazione complessiva dell’area che conserverà parte dell’immobile in quanto considerato di grande interesse per i suoi peculiari caratteri architettonici e tipologici tipici della tradizione industriale pratese.
La parte nuova si andrà ad integrare con la porzione storica e con il contesto circostante, attraverso un linguaggio innovativo in forme e materiali e colori.
La porzione storica “a quadrilatero”, pur mantenendo le proprie caratteristiche materiche e costruttive, viene completamente rivisitato, evidenziando il ruolo chiave della corte interna.
Le funzioni inserite rispettano il mix funzionale previsto dai piani urbanistici: residenziale, terziario e servizi, ponendo accento particolare sull’inserimento degli atelier-studio e delle residenze universitarie.
Sede: Comune di Prato
Committente: privato
Stato: progettazione esecutiva
Data: 2013 -2014
In collaborazione con arch. Sabrina Bignami e arch. Alessandro Capellaro dello STUDIO B-ARCH, Prato








