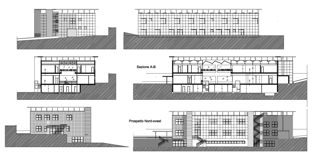
L’intervento prevede la ristrutturazione completa di un edificio industriale per riconvertirlo in immobile a destinazione polivalente, ovvero casa di riposo per anziani autosufficienti, centro riabilitativo e poliambulatorio.
Il progetto prevede inoltre la risistemazione delle aree esterne per ricavare aree pedonali, spazi carrabili e posti auto.

Sede: Comune di Vinci
Committente: privato
Stato: progettazione esecutiva
Data: 2017-2018
In collaborazione con l’arch. Pia Cristina Zavatti





